Caricamento...
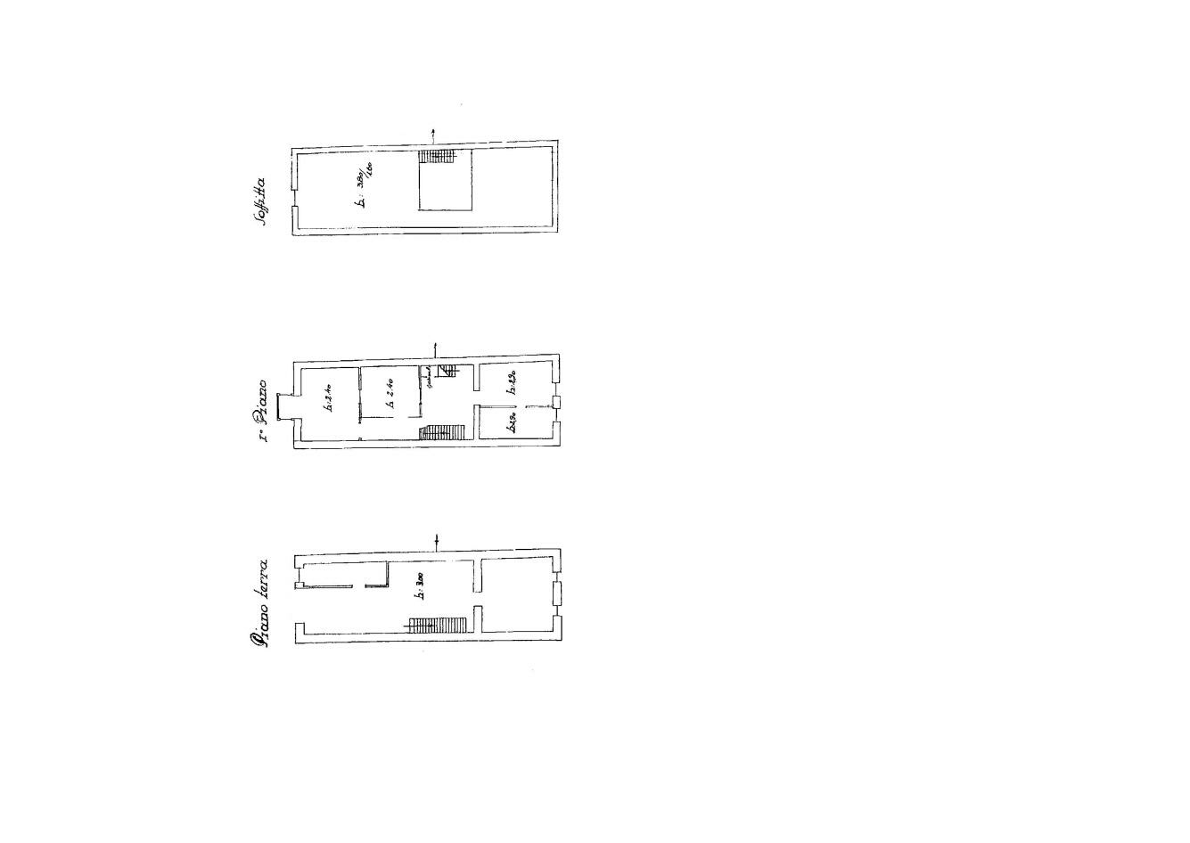
A Pressano di Lavis vendiamo porzione di casa totalmente da ristrutturare, composta da:
°° piano interrato: grande cantina-avvolto;
°° piano terra: con ingresso dalla via pubblica troviamo grande locale deposito, ampia cantino e locale deposito; con scala interna si arriva al 1° piano con
°° primo piano: ampio ingresso, soggiorno con cucinino, 2 stanze, locale con luce indiretta e bagno; con scala interna si arriva al piano sottotetto con
°° piano sottotetto: grande soffitta.
| Dettagli | |
|---|---|
| Codice | H048 B |
| Comune | Trento |
| Zona | LAVIS - ZAMBANA |
| Piano | T-1°p-2° p sottotetto |
| Mq | 100 |
| N° stanze | 2 |
| N° bagni | si |
| N° balconi | no |
| Esposizione | est-ovest |
| Giardino | NO |
| Terrazzo | NO |
| Cucina abitabile | NO |
| Riscaldamento | Legna |
| APE | G |
| Garage | no |
| Posto auto | no |
| Condizioni | TOTALMENTE da RISTRUTTURARE |
| Ufficio Bolghera - TN | ||
|---|---|---|
| Trento - Via Bolghera, 31 | ||
| 0461 917555 | 0461 391404 | |
| bolghera@intermedia-tn.it | ||